Investment Pipeline
Explore Our Current Investment Opportunities
Investment Pipeline
Explore Our Current Investment Opportunities
High Northgate
This upcoming project will see a complete transformation of a semi-commercial property into a modern 12-bed HMO designed for professionals. With a focus on style, functionality, and comfort, the property will feature high-end studio rooms, sleek modern designs, and all the amenities needed for easy, comfortable living. The result will be a sophisticated, inviting space perfect for shared living.
![Northgate_studio room 6 _view 1_281124[74]](https://capitalonepropertypartners.com/wp-content/uploads/2024/12/Northgate_studio-room-6-_view-1_28112474-150x150.jpg)
![Northgate_ensuite_281124[98]](https://capitalonepropertypartners.com/wp-content/uploads/2024/12/Northgate_ensuite_28112498-150x150.jpg)
![Northgate_kitchen _281124[92]](https://capitalonepropertypartners.com/wp-content/uploads/2024/12/Northgate_kitchen-_28112492-150x150.jpg)
![Northgate_studio room 6 _view 2_281124[6]](https://capitalonepropertypartners.com/wp-content/uploads/2024/12/Northgate_studio-room-6-_view-2_2811246-150x150.jpg)
![Northgate_room 7 _view 2_281124[7]](https://capitalonepropertypartners.com/wp-content/uploads/2024/12/Northgate_room-7-_view-2_2811247-150x150.jpg)
![Northgate_room 7 _view 1_281124[54]](https://capitalonepropertypartners.com/wp-content/uploads/2024/12/Northgate_room-7-_view-1_28112454-150x150.jpg)
Existing Proposed


Elevation


Ground Floor


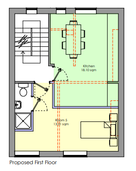
First Floor


High Northgate
This upcoming project will see a complete transformation of a semi-commercial property into a modern 12-bed HMO designed for professionals. With a focus on style, functionality, and comfort, the property will feature high-end studio rooms, sleek modern designs, and all the amenities needed for easy, comfortable living. The result will be a sophisticated, inviting space perfect for shared living.
![Northgate_studio room 6 _view 1_281124[74]](https://capitalonepropertypartners.com/wp-content/uploads/2024/12/Northgate_studio-room-6-_view-1_28112474-150x150.jpg)
![Northgate_ensuite_281124[98]](https://capitalonepropertypartners.com/wp-content/uploads/2024/12/Northgate_ensuite_28112498-150x150.jpg)
![Northgate_kitchen _281124[92]](https://capitalonepropertypartners.com/wp-content/uploads/2024/12/Northgate_kitchen-_28112492-150x150.jpg)
![Northgate_studio room 6 _view 2_281124[6]](https://capitalonepropertypartners.com/wp-content/uploads/2024/12/Northgate_studio-room-6-_view-2_2811246-150x150.jpg)
![Northgate_room 7 _view 2_281124[7]](https://capitalonepropertypartners.com/wp-content/uploads/2024/12/Northgate_room-7-_view-2_2811247-150x150.jpg)
![Northgate_room 7 _view 1_281124[54]](https://capitalonepropertypartners.com/wp-content/uploads/2024/12/Northgate_room-7-_view-1_28112454-150x150.jpg)






























Elevation


Ground Floor


First Floor


Station Road, Darlington

This current 4-bedroom mid-terrace residential property is set to be transformed into a 6-bedroom HMO, featuring a blend of studios and HMO rooms, all with en-suites and finished to a high standard in the heart of Darlington. This development is primed to capitalise on the significant investment in the area.







Basement

Ground Floor

First Floor

Station Road, Darlington
This current 4-bedroom mid-terrace residential property is set to be transformed into a 6-bedroom HMO, featuring a blend of studios and HMO rooms, all with en-suites and finished to a high standard in the heart of Darlington. This development is primed to capitalise on the significant investment in the area.






























Basement

Ground Floor

First Floor

Duke Street

This existing 4-bedroom end-terrace residential property is set to be converted into a high-quality 6-bedroom HMO, comprising a mix of en-suite rooms and self-contained studios. Located in a well-connected part of Hartlepool, the development is designed to meet growing demand for premium rental accommodation and is well positioned to benefit from the major regeneration and investment taking place across the town.
Basement


Ground Floor


First Floor


Second Floor


Section


Elwick Road, Hartlepool
This existing 4-bedroom end-terrace residential property is set to be converted into a high-quality 6-bedroom HMO, comprising a mix of en-suite rooms and self-contained studios. Located in a well-connected part of Hartlepool, the development is designed to meet growing demand for premium rental accommodation and is well positioned to benefit from the major regeneration and investment taking place across the town.
Ground Floor


First Floor


Second Floor


Section


Basement


